Plusieurs personnes m’ont posé cette question : comment réaliser le plan de l’installation électrique d’une maison ou d’un appartement.
La réponse n’est pas simple car cela demande beaucoup d’explications.
Je vais simplement essayer dans cet article de vous démontrer comment personnellement je procède en qualité d’auto-constructeur, Il ne s’agit pas là d’un tutoriel de technique professionnelle et évidemment, je n’ai pas la prétention de donner des conseils de professionnel.
Faire soi-même toute l’installation électrique de son habitation est tout à fait possible à condition d’être précis et consciencieux !
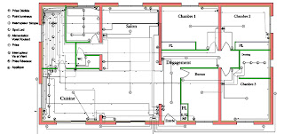
La première action consiste à réaliser le plan de cette installation en respectant les normes en vigueur, je prends donc le plan de la maison concernée.
Je commence par déterminer pièce par pièce tout l’appareillage que je prévois, les points lumineux les interrupteurs, les prises électriques (simple, double ou triple) et éventuellement les prises informatiques.
Pour commencer, sur ce plan je détermine l’emplacement de la gaine technique et du tableau électrique général.
Dans ce cas le tableau sera dans le cellier.
Ceci fait, je vais commencer par faire un premier plan concernant toutes les lignes qui passeront sous combles ou faux plafond, points lumineux, prises , prise réseaux (RJ) volets roulants etc.
Je procède pièce par pièce en utilisant des symboles que j’ai créés pour illustrer ce plan, voici la liste:
Je place donc sur ce premier plan tous les appareillages qui seront alimentés par les combles ou le faux plafond.
J’ établis une liste de toutes les lignes dédiées à un appareil unique.
Comme par exemple ici la D3 et la D4 dédiées respectivement au Lave Linge et au Congélateur.
Liste des prises dédiées
Alimentation par les combles
D1 VMC 2 A
D2 Hotte Aspirante 16 A
Alimentation par le sol
D3 Lave Linge 20 A
D4 Congélateur 20 A
D5 Chauffe-Eau Thermodynamique 20 A
D6 Unité extérieure Pompe à Chaleur 32 A
D7 Unité intérieure Pompe à Chaleur 32 A
D8 Plaques de Cuisson 32 A
D9 Four 32 A
D10 Lave Vaisselle 20 A
D11 Réfrigérateur 20 A
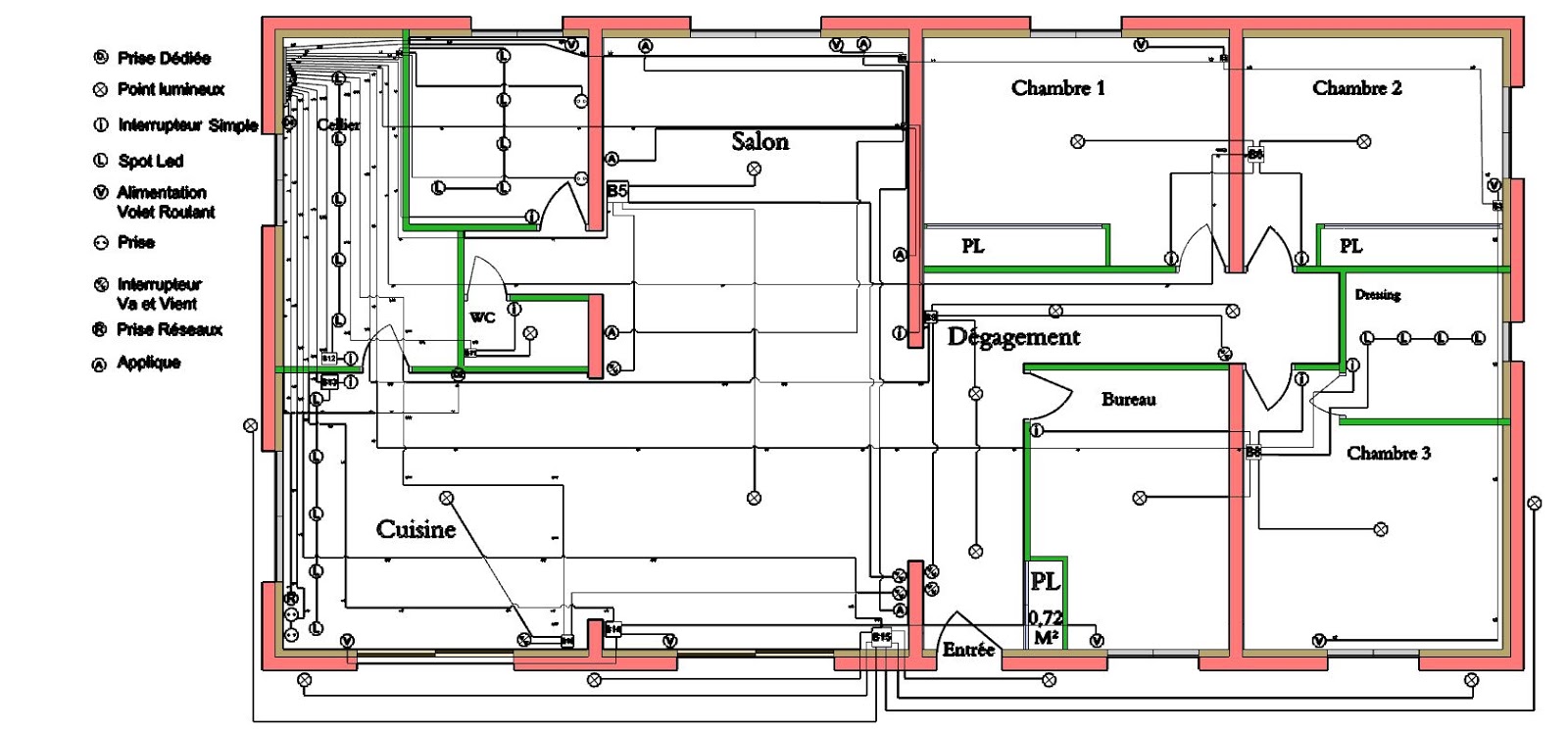
Je vais maintenant faire un second plan en disposant toutes les prises électriques et réseaux.
Ceci fait, je vais maintenant tirer les lignes que je numéroterait en réalisant simultanément une liste descriptive de toutes les lignes.
Je commence par les combles ces lignes arriveront donc au tableau principal de contrôle par le haut.
Je reprends donc mon premier plan : lignes combles et faux plafond.
Je vais commencer par les volets roulants, je vais créer trois lignes la première pour le volet roulant de la salle de bain, car celle-ci doit être protégée indépendamment de toutes les autres lignes.
La salle de bain possédera son propre disjoncteur différentiel 30 ma.
Cette première ligne sera donc appelée L1
Et je commence donc à effectuer la liste descriptive, concernant le plan des lignes sous combles et faux plafond.
La seconde ligne volets roulants alimentera le volet roulant de la fenêtre du salon côté nord, celui de la chambre 1 celui de la chambre 2 et de la chambre 3.
Elle sera donc intitulée L 2
Je pourrai ponter d’un volet à l’autre, mais je préfère mettre en place des boîtes de dérivation.
Je vais donc établir une liste des boîtes de dérivation avec pour chacune d’elles un croquis explicatif.
Je procéderai maintenant de la même façon pour tous les descriptifs.
Je continue avec la ligne 3 : Alimentation éclairage salle de bain
Ligne 4 : Alimentation prise sur le lavabo salle de bain
Ligne 5 : Alimentation sèche serviettes salle de bain
Ces trois lignes rejoignent la boite de dérivation B4 qui concerne les alimentations de la Salle de Bains.
Et bien entendue je consigne tout cela au fur et à mesure sur le descriptif des lignes
Je procède évidemment simultanément à établir le descriptif de la boîte de dérivation B4 qui concerne ces nouvelles lignes.
Lorsque sur le plan une ligne croise d’autres lignes, je réalise des petits ponts pour pouvoir suivre correctement chaque ligne.
Je continue avec la ligne 6 : alimentation des deux points lumineux centraux du salon
Ligne 20 : Ligne dédiée D 2 alimentation Hotte Aspirante
Voilà, donc si je n’ai rien oublié, le plan des lignes sous combles est terminé.
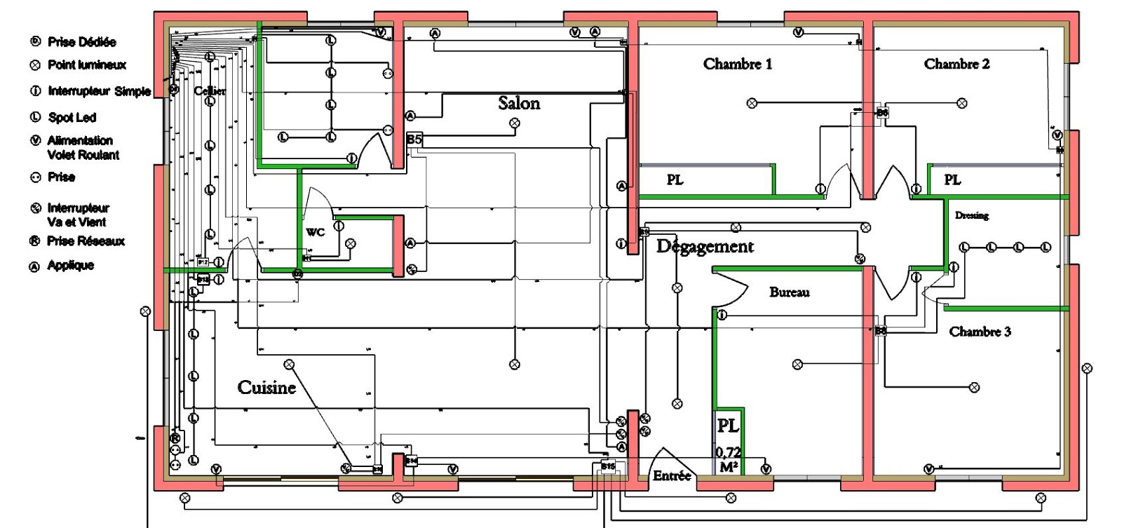
Je vais maintenant procéder de la même façon pour les lignes au sol qui seront enfouies dans la chape.
Pour les prises 16 A la norme indique que si on utilise des conducteurs de 1,5 mm², on peut ponter 8 prises par ligne, si on utilise des conducteurs de 2,5 mm², on peut ponter 12 prises par ligne, sachant que toutes les prises sont comptables, c’est-à-dire par exemple qu’un bloc de trois prises compte pour trois prises (ce qui n’était pas tout à fait le cas avant 2016).
Je prévois donc des lignes avec des conducteurs de 2,5 mm² et un maximum de 12 prises par ligne.
Je prends donc le second et plan je commence par le côté nord en déployant les lignes en éventail pour éviter au maximum que les conduits se chevauchent, car sinon cela pose ensuite des problèmes d’épaisseur de chape.
Je reprends donc le compte de numérotation des lignes.
Ligne 21 : Ligne dédiée D3 Lave linge
Ligne 22 : Conducteur de terre vers la boîte B16 , pour la réalisation de la ligne équipotentielle de terre de la Salle de Bains.
Ligne 23 : Câble réseau Salon Est
Ligne 24 : Ligne confort C1: ( concernant 11 prises confort) : 5 prises Salon côté Est.
3 prises chambre 1 côté Est
3 prises chambre 2 côté Est
Ligne 25 : Alimentation prise dédiée D4 : Congélateur
Ligne 26 ; ligne prises confort Salle de Bain
Ligne 27 : Ligne prises confort C2 (11 prises) : Cellier Sud 1, Cellier Ouest 1, WC 1, Salon Nord 2, Salon Sud 2, Dégagement Nord 2, Chambre 1 Nord 1, Chambre 1 Ouest 1.
Ligne 28 : Alimentation ligne dédiée D8 : Plaque de Cuisson
Ligne 29 : Câble réseau Chambre 1
Ligne 32 : Ligne prises confort C4 (10 prises confort) : 1 Cuisine Ouest, 2 Salle à Manger Sud, 2 Bureau Nord, 1 Bureau Ouest, 2 Chambre 3 Ouest, 2 Chambre 3 Sud.
Voilà si je n’est rien oublié, c’est la dernière ligne !
Il y aura donc en tout 43 lignes à effectuer.
20 lignes sous combles ou faux plafond.
Et 23 lignes au sol.
Cet amas de conduits qui arrive au tableau, à première vue semble effrayant, mais si tout est marqué et répertorié, la réalisation du tableau et de ses branchement se fait sans problèmes.
Pour gagner du temps, éviter les prises de tête et les erreurs de branchement, j’effectue un croquis pour visualiser les connections à effectuer pour chaque boite de dérivation !
Exemple pour la B10 qui concerne le point lumineux central de la cuisine avec son va et vient.
J’ai donc comme documents récapitulatif :
Ensuite:
J’ai ensuite :
Et j’ai enfin:
Avec tous ces documents je peu commencer l’installation l’esprit tranquille.
Les lignes d’éclairages 16 Ampères, seront effectuées avec des conducteurs de 1,5 mm
.Les lignes 20 Ampères, seront effectuées avec des conducteurs de 2,5 mm.
Les lignes 32 Ampères seront effectuées avec des conducteurs de 6 mm.
Pour ce qui concerne la réalisation du tableau de contrôle voir l’article suivant :
INSTALLATIONS ÉLECTRIQUES NOUVELLES NORMES COMMENT FAIRE
