Grâce au logiciel gratuit SketchUp, faire un plan de maison en 3D est à la portée de tous. Je vais vous montrer, comment personnellement je procède.
Remarque:
Avant tout, pour ceux qui ne connaissent pas ce logiciel, j’ai fait une série d’articles et vidéos explicatives de son fonctionnement, de sa prise en main et des différents outils de travail. Disponibles ici
L’objectif de cette série d’article est donc de faire le plan en 3D d’une maison de plain pied. Elle sera assez simple mais la méthodologie employée ici s’adapte à tous les plans que vous pouvez imaginer.
Etape 1: Réalisation de l’empreinte au sol de la construction
Dans ce premier article on va donc s’attacher à réaliser l’empreinte au sol de notre maison.
Tout part de là…. 😎
Premièrement, j’ouvre le logiciel Sketchup via un clic sur l’icône présente sur le bureau Windows.

La première fenêtre apparaît, je clique en bas à droite sur « commencer à utiliser SketchUp » :

Dans la nouvelle fenêtre qui apparaît, je clique sur « Affichage ».

Puis sur « Barre d’outils ».

Ensuite je sélectionne dans la liste « Grand jeu d’outils ».

Et enfin en descendant dans la liste sur « Premiers pas ».

Ceci fait, j’élimine la figurine en cliquant dessus et sur la touche supprimer, elle ne me sera d’aucune utilité.

Avant de commencer, je dois définir l’unité de mesure avec laquelle je désire travailler. Pour cela, je clique sur l’onglet « fenêtre ».

Ensuite sur « Infos sur le modèle ».

Puis dans les unités de longueurs sur « cm ».

Je réalise maintenant qu’il me manque les outils « standard ». Pour les faire apparaître, je clique sur « Affichage », « Barre d’outils » et sur « Standard » et j’ai maintenant quelques outils supplémentaires.

Passage du plan 2D au plan de la maison en 3D
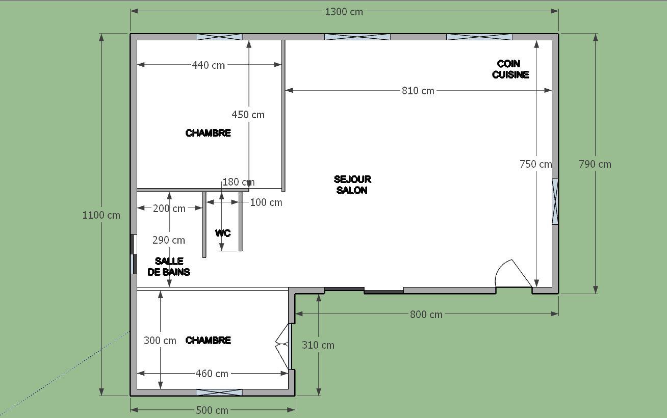
Avant de commencer ce plan en 3 Dimensions, j’ai bien évidemment réalisé un plan en deux dimensions de mon projet. J’ai donc toutes les côtes nécessaires pour travailler.

Je reviens maintenant sur mon modèle SketchUp et je créé la forme de départ de base de la maison, à savoir un rectangle de 1300 cm sur 1100 cm. Pour se faire, je clique sur l’outil rectangle.

Je place le curseur sur le point des trois axes, puis clique et déplace mon curseur en diagonale. Pour obtenir les dimensions exactes de mon rectangle, je saisie alors sur mon clavier numérique les valeurs 1300;1100. J’obtiens alors instantanément un rectangle aux mesures désirées. Pour le recentrer je clique sur l’outil main.

Et je déplace mon rectangle dans l’espace du modèle.

Ensuite, je trace sur cette surface les côtes extérieures de l’emprise au sol de la construction, pour cela j’utilise l’outil « Mètre », la première côte que je trace est celle-ci:

Un clic sur l’outil « Mètre », puis je place le curseur sur le côté du rectangle, je clique sur la ligne et je déplace le curseur latéralement, je tape sur le clavier 500 et sur la touche « Entrée », ma ligne de travail se trouve bien à 500 cm.



Je trace maintenant de la même façon en prenant cette seconde côte, la deuxième ligne qui détermine le pourtour de la construction :


Mes 2 lignes de travail sont en place.
A l’aide de l’outil « crayon », je dessine le pourtour de la zone ainsi déterminée.

Je positionne le crayon sur ce point et je clique.

Puis je vais sur cet autre point et je clique. Je tape sur la touche « Echap », je reviens sur ce point, je clique, je me rends sur cet autre point et je clique, mes deux lignes sont tracées.

Je supprime maintenant la zone inutile, pour cela je prends l’outil « Effacer ».

Je clique sur ce trait et j’efface.

Ensuite sur l’autre trait et j’efface,

Je supprime également de la même manière les deux lignes de travail.


J’ai maintenant l’empreinte exacte de ma construction.

Sauvegarder notre fichier de travail
Voilà c’est terminé pour la première étape. A noter qu’il est important d’enregistrer régulièrement pour ne pas perdre toutes les données. De plus on peut faire des pauses et reprendre le travail ultérieurement, pour cela il faut cliquer sur « Fichier »:

Ensuite sur « Enregistrer sous »:

Enregistrez votre fichier Sketchup à l’emplacement de votre choix. Personnellement j’enregistre dans un premier temps sur le bureau, préalablement il faut nommer le modèle, celui-ci je l’appelle « MAISON 3 D 1 »

Ceci fait, je clique sur « Enregistrer », et à chaque fois la même question apparaît, je clique alors sur oui pour que les avancées soient enregistrées.

Je retrouve donc ensuite sur mon bureau une icône concernant ce modèle, il me suffira de cliquer dessus pour le rouvrir et continuer à travailler sur ce modèle.


