Recevez nos meilleures astuces travaux
chaque semaine, gratuitement.
🔒 Sans spam,
désinscription 1 clic.

Le matériel nécessaire est le suivant:
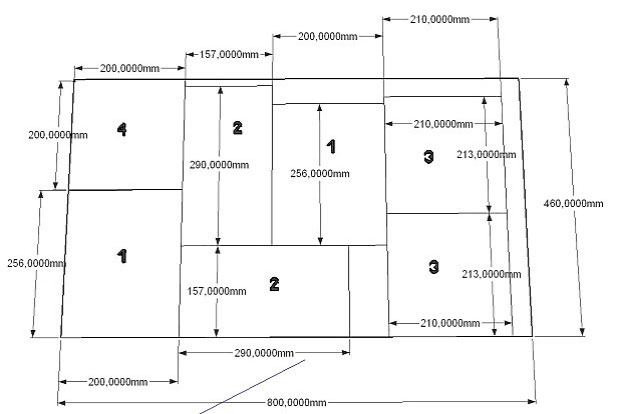
– Un morceau de contre-plaqué « Marine », de 80cm X 46cm
– Deux longueurs de tasseaux sapin de 4cm X 200cm
– Une longueur de tasseaux sapin de 2,5cm X 100cm
– Une longueur de rondin 10mm de diamètre
– Une longueur de cornière bois 10mm X 2mm X 50cm ou à défaut 1 mètre
– Deux petits morceaux de chaînette
– 8 tire fonds de 8mm X 60mm (supports de mangeoire)
– 4 tirefonds de 8mm X 40mm (pieds)
– Vis à bois de 5mm X 40mm
Panneaux n°1 : X 2
Panneaux n°2 : X 2
Panneaux n°3 : X 2
Panneau n°4 x1
Découpe des éléments de conception du pied :
Découpe des éléments support de mangeoire :
Découpe des éléments d’assemblage des panneaux (4 cotés) :

Assemblage des principaux panneaux :

Mise en place par collage de la cornière de faîtage :
Assemblage des éléments du pied :
Fixation du pied sous la mangeoire :

Perçage des trous pour la barre de suppport des boulettes de graisses :
Mise en place de la barre de support des boules de graisses :
Perçage des trous pour les perchoirs :
Collage des perchoirs :
Mise en place des chaînettes support de boules de graisses:
Mise en place du récipient pour les graines :
Voilà il reste maintenant à passer du virtuel au réel, mais avec toutes ces données la confection de cette mangeoire sera beaucoup plus rapide et facile !
Voici une petite animation :
Recevez nos meilleures
astuces chaque semaine
- Astuces pratiques et guides pas à pas
- Bons plans et réductions exclusives
- Conseils d'experts pour réussir vos projets
Rejoignez notre communauté !
🔒 Pas de spam, désinscription en 1 clic.



